OUR CRAFT

WHY DEEP RIVER PARTNERS

We are Residential Architects & Interior Designers who are passionate about creating an extraordinary home designed to reflect your unique vision and lifestyle.

The Deep River Advantage ensures the completion of a distinctly personal home of the highest quality.  Combined architecture and interior design services are delivered in a streamlined Pathway creating a completed home where all the details are accounted for, working together to support the main design themes.

Deep River Partners specializes in residential design, including remodeling, custom homes, historic renovations, and condominium build-outs. Our client list includes top executives of major national and international companies that have trusted all phases of their project to Deep River Partners. Serving clients across the United States, we have completed projects in Palm Desert and Indian Wells, California; Telluride, Colorado; Flagstaff, Arizona; Charleston, South Carolina; Lake Oconee, Georgia; Fort Myers, Florida; Escanaba, Michigan; and on premier estates in Milwaukee, Lake Country and Northern Wisconsin, including waterfront properties on the shores of Lake Michigan.

Each unique project is produced along a client-centric pathway that consistently exceeds expectations with regional, creative, and distinctive designs. Our detailed and methodical approach captures all design disciplines into a cohesive and complete set of documents that define quality and all areas of the project. Detailed documents allow all-inclusive competitive bidding, eliminating price creep during construction, reducing your risk throughout.

We are your connection to the latest technologies and finest artisans.  We have a proven track record integrating specialized disciplines, such as water features, audio/visual systems, light controls, smart technologies, green elements, aging in place designs, and craft metalworks into your home.

We give our clients confidence throughout our Pathway with risk management through detailed documents that provide lower costs resulting from competitive bidding, fixed price contracts, and proven advice while navigating difficult decisions. Deep River Partners provides a thoughtful, low stress, and managed experience from initial discovery through move-in and beyond—an enjoyable and adventurous method of capturing the vision and making your home a reality.

Deep River Partners’ craft produces residential architecture and interiors that consistently engage the heart, mind, and soul.

“They execute in a very innovative and creative way. They did everything, a one-stop-shop for us – architecture, interiors, furnishings, fabrics, and logistics. Everything was seamless.”

ARCHITECTURE

We utilize our talents of insight, intuition, and introspection to provide imaginative solutions and address all potential opportunities in response to your goals. At Deep River Partners, architecture provides the foundation to our holistic approach. Our in-depth discovery assures a design that “fits”  your aesthetic, functional, financial, and future goals.

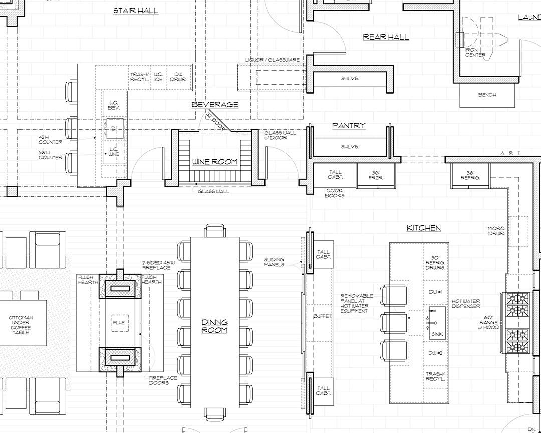
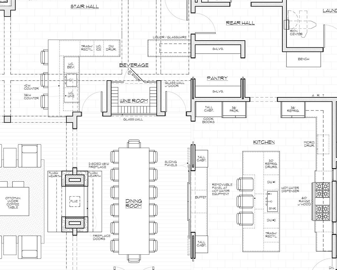
We utilize color rendering, computer modeling, and 3-D animation to accurately communicate design solutions. We make design concepts easy to follow so you emerge from each meeting with a thorough and complete understanding of your options.

Our documentation promotes competitive bidding at the general contractor and subcontractor level providing you the best value and the highest quality.  Detailed documentation gives clear direction as we move through construction, protecting you, minimizing disagreements, and providing contractors with clarity. As a single source of contact, we streamline the pathway of a successful construction sequence with all contractors involved in building your home.

“I felt a real sense of competence -from the moment I met with Deep River and I was confident that they’d complete a custom home design of great magnitude for me.”

INTERIOR DESIGN

Our interior design team creates cohesive solutions that leverage expertise in all areas of fit and finish, attending to every detail.  Interior design naturally accompanies architecture—the union of these two disciplines achieves a true feeling of home.  Whether part of our custom home pathway or as a standalone service…

Our interior design is attentive to and defines desired themes with appropriate interior elements that produce comfortable surroundings that resonate on a human level. We consider which textures and colors enliven the architectural style and support the desired interior themes. We curate the best combination of architectural and interior elements that enhance and promote your vision of home. We purposefully assemble furniture and product selections as an expression of you.

We create surroundings where color, texture, and light augment the architectural and interior themes and elevate your spirit. This is when your vision for “home” is realized, and an enriched lifestyle is found.

“When I walked into my new house – the kitchen, especially – I immediately felt at home. I am so grateful for such a beautiful and intuitive design.”

FURNISHINGS

Understanding the importance of details is key to creating a truly extraordinary home. At Deep River, our architecture and interior themes are complimented through the careful selection of furnishings and accessories. These decisions provide the beauty and function that support daily living.

The thoughtful selection of furniture, fabric, area rugs, window treatments, and accessories further personalize a house to become your home. We contemplate what is most suitable for the intended use – from scale to fabric performance. Does a piece of furniture feel right in the space? Is the fabric pet or child-friendly? Does the furniture form reinforce the architectural details, and the textile choices enhance the interior finishes? The details matter and a well-designed home embodies that intention.

We collectively consider and determine the most appropriate ensembles of furnishings. Whether you want all new selections, desire to include several existing furniture pieces, or have a cherished possession to serve as a focal point, our Interior Designers will collaborate with you to determine the best location and offer the most useful solutions for your lifestyle.

“The fit, the finish, the functionality, and the flow and designing with the furniture in mind are also critical in how the space flows. Those details thought through is the benefit of the team at Deep River.”